Amarradores Cien
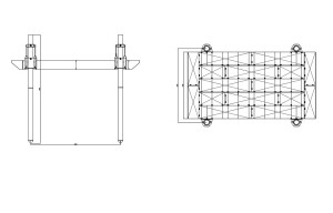
La pontona modular Amarradores Cien, flotante y con una profundidad máxima de trabajo de 22 m.
Algunas obras donde se emplea esta plataforma modular Amarradores Cien.

Aquí puede ver la pontona modular en una de nuestras obras realizadas, en este caso para nuestro cliente SATO , realizando el Dragado de arena en el Canal de la Ría de Ferrol.
También se ha empleado esta pontona modular para COPCISA realizando el Posicionamiento de Pontona y medios auxiliares para trabajos en el Muelle del Comercio- Obra “Duque de Alba en el Muelle de Comercio-Vigo”.
Para más información, no dude en consultarnos mediante email, teléfono o enviando un formulario de contacto
Descripción
La pontona modular Amarradores Cien, flotante y con una profundidad máxima de trabajo de 22 m.
Algunas obras donde se emplea esta plataforma modular Amarradores Cien.
Aquí puede ver la pontona modular en una de nuestras obra realizadas, en este caso para nuestro cliente SATO , realizando el Dragado de arena en el Canal de la Ría de Ferrol.
También se ha empleado esta pontona modular para COPCISA realizando el «Posicionamiento de Pontona y medios auxiliares para trabajos en el Muelle del Comercio- Obra “Duque de Alba en el Muelle de Comercio-Vigo”.
La pontona Amarradores Cien soporta condiciones climáticas con máximas de viento de hasta 100 Km/h y olas 2,5 m de altura.
Esta pontona modular esta diseñada para su montaje a flote, los costados de los flotadores disponen de uniones macho-hembra que permiten su perfecto encaje.
Para más información, no dude en consultarnos mediante email, teléfono o enviando un formulario de contacto.
Información adicional
| Eslora total (LT) (m) | 30 |
|---|---|
| Manga (m) | 15,05 |
| Puntal (m) | 2 |
| Patas hidráulicas (m) | 24 |
| Profundidad máxima de trabajo (m) | 22 |








